Knapp Joint Drawer

By JT007
|
BY-NC-SA 4.0 License
|
Updated Sat Nov 21 2020

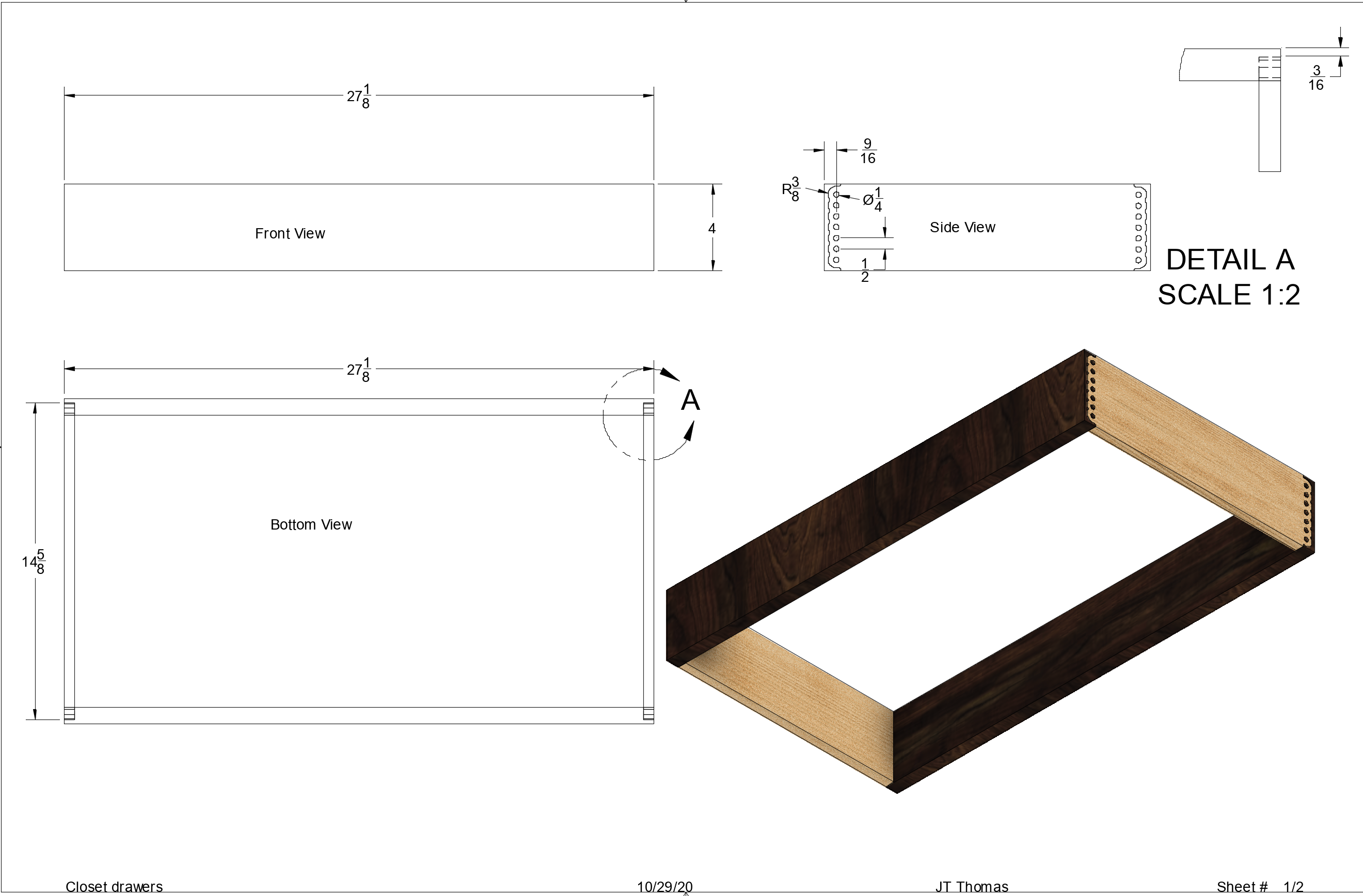
This is an example of a Knapp Joint (also know as a cove and pin joint) used for drawers. This one is for a 4 in height drawer with 3/4 in front/back and 1/2 in sides. The spacing is at 1/2 in between each cove/pin so if your drawers are different size, simply modify the model in Fusion 360 and export a new side and front.

1 hr
Intermediate

211

Joinery

Files Included (5)

  • 4in drawer.png

    982 kB
  • Closet Drawer Front 4 in.svg

    4 kB
  • Closet Drawer Side.svg

    6 kB
  • Knapp Joint v3.f3d

    170 kB
  • Knapp Joint.png

    222 kB

Materials

2 each 4"x 1/2" x length of side- hardwood for side

2 each 4" x 3/4" x Length of front- hardwood for front

1/4" plywood for drawer bottom

Tools

Shaper Origin

1/4" upcut spiral end mill

Some vertical workstation or clamping system for cutting end of stock

Instructions

These joints are extremely strong and a nice alternative to dovetail or box joints. I have included a copy of a 4" box corner for you to modify for your application. I also included a drawing of the drawer that I built. There are 2 svg files included, one for the end of the fronts, and one for the end of the sides. Note the drawing shows a 3/16" extension of the front and back of the box that needs to be calculated into the actual size of the side. (Subtract 3/8" from the actual measurement of the side of the box from the overall dimension of the side svg.) The spacing of the design allows for using a 1/4" end mill for all the cuts. Since the holes for the pins are exactly 1/4", you cannot add an offset for clearance, but I found that my cuts were spot on with no offsets required. You should use a caliper for the exact thickness of the sides to determine the depth of cut on the front. I recommend adding a .005-.010" depth to have the drawer front proud of the sides. I cut a groove in the bottom inside of each of the sides to insert a plywood bottom. I used a router table, but you could certainly use Shaper for that cut too. You could even add the groove to the sides before exporting the svg. I used a stopped dado cut so the groove does show from the outside. Position the bottom of the groove about 3/16 from the bottom of the drawer and most of the groove will clear the bottom pin anyway.


Made by Shaper Tools

© ShaperHub & Shaper Tools, Inc. all rights reserved